Zona Dorally, vila moderna D+P+E , 4 camere, demisol , mansarda, 400 mp teren

Pret 280.000€

Descriere casa vila

Profimo Real Estate va propune pentru vanzare o proprietate moderna de 4 camere, compusa din D+P+E +M (2011) pe un teren de 400 mp cu deschidere 14m, situata in zona Km 4,Dorally Mall.
Imobilul are o structură de rezistență din cadru de beton armat, cu planșe de beton cu grosime de 14 cm peste demisol și parter. Pereții demisolului sunt din beton armat cu grosime de 25 cm.
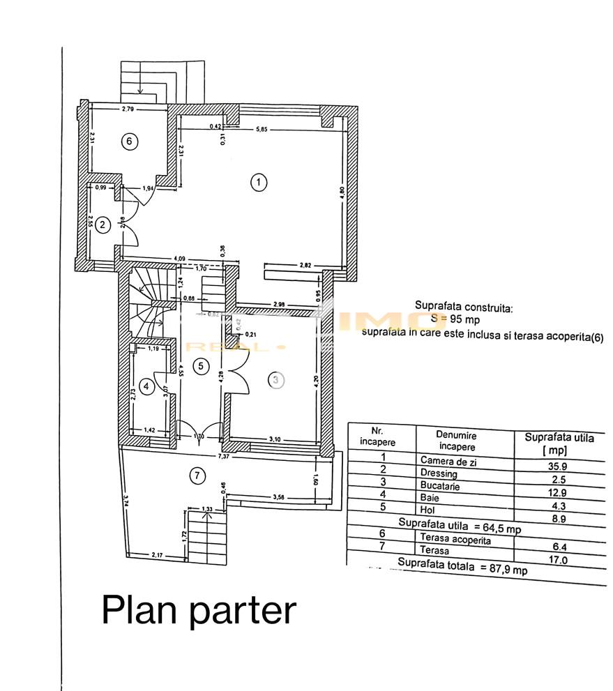
Casa are la parter un living spațios cu bar și dressing, baie și bucătărie, cu o terasă la intrare și alta la ieșirea în curtea din spate, iar la etaj 3 dormitoare cu dressing propriu, o baie și două balcoane, structura de rezistență permițând ridicarea a cel puțin altor două etaje.
Demisolul este spațios (48 mp), cu intrare atât din curte cât și din casă, aici fiind instalată și centrala termică și poate fi compartimentat cu ușurință pentru a beneficia de o garsonieră suplimentară, acoperisul este inalt, avand spatiu pentru o mansarda.
Se vinde mobilată și utilată exceptând unele piese personale.

Caracteristici generale casa vila

  • Acces Casa:
    Auto Autobuz Pietonal
  • Acces internet:
    Wireless
  • Acoperis:
    Lindab
  • Aer Conditionat:
    Da
  • Bucatarie:
    Mobilata Utilata
  • Calorifere:
    Da
  • Clasa Energetica:
    B
  • Contorizare:
    Apometre Contor gaz
  • Curte:
    Gradina
  • Destinatie:
    Locuinta
  • Dotari:
    Aer Conditionat Sistem Alarma
  • Electrocasnice:
    Aragaz Frigider Masina de spalat vase
  • Ferestre Casa:
    Term. PVC
  • Geam baie:
    Da
  • Incalzire Casa:
    Centrala Termica
  • Izolatii termice:
    Exterior
  • Mobilat:
    Partial
  • Pereti:
    Lavabil Faianta
  • Plansee:
    Beton Armat
  • Podele:
    Gresie Parchet
  • Servicii:
    Administrare
  • Stadiu Finisare:
    Finalizat
  • Strazi:
    Asfaltate
  • Structura Casa:
    Beton
  • Teren imprejmuit:
    Teren imprejmuit
  • Tip Casa:
    Individuala
  • Tip Curte:
    Individuala
  • Usa intrare:
    Metal
  • Usi:
    Lemn
  • Utilitati:
    Curent Gaz Canalizare Apa
  • Vecinatati Spatii:
    Autobuz Zona comerciala Piata
  • Zidarie:
    BCA